STAGE 1, 2 & 3 Now Sold out

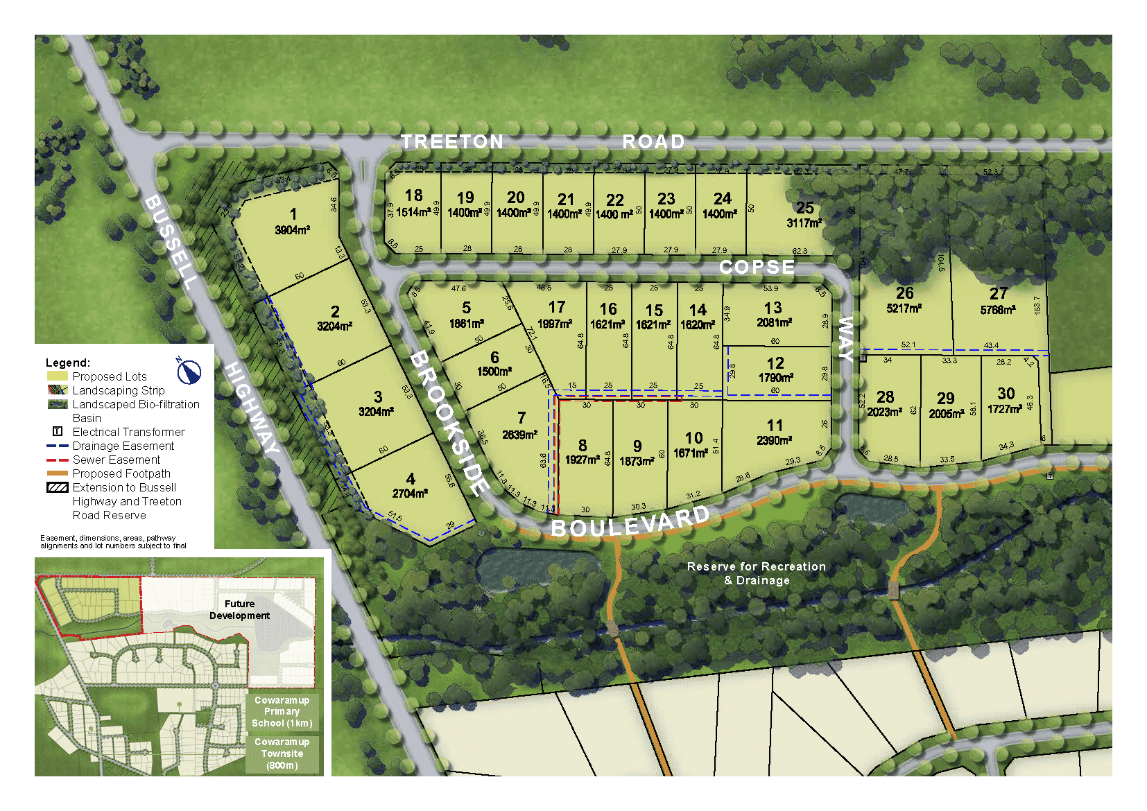
Stage 4 is the Final Release of Symphony Waters Residential Land Release. These sites boast extra large home sites ranging from 1000sqm in area and realistically priced . These large home sites will be serviced with underground power, deep sewerage, scheme water, telephone and NBN (National Broadband Network). With stage 1 2 and 3 are now completely SOLD OUT you can now secure your choice of home site in stage 4 with settlement in 30 to 60 days.
STAGE 1 2 & 3 SOLD OUT

MASTER PLAN in 4 Stages
This prime land release right in the heart of the world renowned Margaret River Wine Region. Symphony Waters has been developed as a modern housing estate within a picturesque rural setting that captures both the natural wonder and relaxed coastal lifestyle of the region. The estate is bordered by a beautiful stream and lake with 5.2 hectares set aside for lush parklands
